Search Database
ADNOC-FOD Headquarters Building
Location
Abu Dhabi
Country
U. A. Emirates

Architect/Engineer/Team
Jafar Tukan

Construction
1996

Project Status
Built
Building Type
Tower

Notes
The project was set in a context conditioned with monotonous plots and strict regulations, including the requirement of incorporating of Islamic style elements, which was done, at many instances, according to superficial interpretations of Islamic architecture.

“The challenge faced in designing the ADNOC-FOD Building was to be able to carve out of the prevailing banality a building that is distinctly modern yet which exhibits a regional flavor reflecting the traditional architecture of the place: generally of white-washed mud construction with small openings to keep the hot sun out while simultaneously using it to highlight intricate or simple reliefs carved into the surface of the mud.
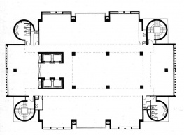
The lot in question is rectangular in form. The stair and service cores were placed in the four cylindrical towers at the corners of the building, leaving the office floors fully open. The building's base was clad in gray granite with a relief motif derived from a traditional regional one. The general treatment of the facade clearly reflects the three main structural bays, with the glazed central bay dedicated to the offices of department directors. The two side bays house other office spaces. The treatment of the openings in these bays varies from louvers on the lower floors to twin windows on the upper, to create some visual variety but also to open up a more uninterrupted view for the upper floors. The interior of the main entrance was meticulously detailed as a continuation of the exterior treatment of the base, with the use of gray granite and the same relief motif” (Abu Ghanimeh and Pisani, 2001).
Sources

Ali Abu Ghanimeh and Mario Pisani, Jafar Tukan: Architecture, Melfi (Potenza): Libria, 2001, p. 82-83.
 

Information in this database is updated constantly. Do not hesitate to send us comments, information, or illustrations (with appropriate credits) to database@arab-architecture.org
General View
Source: Ali Abu Ghanimeh and Mario Pisani, Jafar Tukan: Architecture, Melfi (Potenza): Libria, 2001, p. 82.
Plan
Source: Ali Abu Ghanimeh and Mario Pisani, Jafar Tukan: Architecture, Melfi (Potenza): Libria, 2001, p. 83.