Search Database
Villa Ibrahim Al-Kassas Bey
Location
Cairo
Country
Egypt

Architect/Engineer/Team
Sayed Karim (Korayem)

Construction
1948

Address
Pyramids's Street, Giza

Project Status
Built
Building Type
House

Notes
The villa is part of a group of three villas, on Al Haram Street, all designed by Sayed Karim and belonging to the Al-Kassas family.

Despite the villa’s large size and program, the architect was still able to maintain a large garden space enhanced with the elevation of the villa on pilotis and the creation of a covered terrace. The terrace faces a large glass room connected to the upper floor through a private staircase. A spiral staircase displayed on the exterior leads to a large balcony and the building’s main entrance.

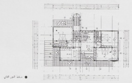
On the first floor, with the use of sliding partition walls, the living spaces can be opened to one another and merged into one large space to host events and parties. The first floor also includes an office and two bedrooms.
The second floor is reserved for the bedroom spaces and includes a family lounge. The rooms on this floor are all connected to a large balcony; only one master bedroom benefits from a private balcony.

Sayed Karim uses highly geometrical architectural language; the villa’s volume is conceived using basic geometric shapes like squares, rectangles, and circles. This geometrical character is further emphasized with the façade’s linear articulations.
The villa was demolished.

Check also Villa Abdel Meguid Al-Kassas Bey and Villa El-Hag Mahmoud Al-Kassas.
Sources
Majallat Al-Imarah,1950, Volume 10, (no.1-5)
Information in this database is updated constantly. Do not hesitate to send us comments, information, or illustrations (with appropriate credits) to database@arab-architecture.org
General View
Source: Majallat Al-Imarah,1950, Volume 10, (no.1-5)
© Majallat Al-Imarah
General Street View
Source: Majallat Al-Imarah,1950, Volume 10, (no.1-5)
© Majallat Al-Imarah
Ground Floor Plan
Source: Majallat Al-Imarah,1950, Volume 10, (no.1-5)
© Majallat Al-Imarah
First Floor Plan
Source: Majallat Al-Imarah,1950, Volume 10, (no.1-5)
© Majallat Al-Imarah
Second Floor Plan
Source: Majallat Al-Imarah,1950, Volume 10, (no.1-5)
© Majallat Al-Imarah